关于永球
公司介绍
企业文化
发展历程
科技创新
荣誉资质
产品中心
无泄漏泵
化工流程泵
离心水泵
容积泵
计量泵
解决方案
精细化工
食品医药
石油日化
市政消防
环保水处理
服务与支持
服务中心
常见问题
下载中心
意见反馈
新闻资讯
公司新闻
产品资讯
联系我们
联系方式
人才招聘
关注我们
搜索
EN
首页
关于永球
公司介绍
企业文化
发展历程
科技创新
荣誉资质
产品中心
无泄漏泵
化工流程泵
离心水泵
容积泵
计量泵
解决方案
精细化工
食品医药
石油日化
市政消防
环保水处理
服务与支持
服务中心
常见问题
下载中心
意见反馈
新闻资讯
公司新闻
产品资讯
联系我们
联系方式
人才招聘
关注我们
新闻资讯
公司新闻
产品资讯
产品资讯
2023-08-18
真空泵基本知识
在真空泵选型前,我们必须弄清楚几个基础概念:真空理论上是指容积...
了解详情
2023-08-18
IP68竟然不是最高防护等级?
水泵电机对于我们大家来说经常用到的,那你对于它的防护等级了解...
了解详情
2023-08-16
排污泵的主要类型与优点
排污泵是一种泵与电机连体,并同时潜入液下工作的泵类产品,与一般...
了解详情
2023-08-08
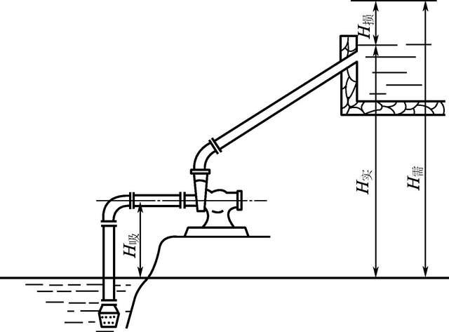
泵的扬程与流量的关系,及扬程的计算
泵的扬程计算是选择泵的重要依据,泵扬程与流量的关系可以参照下...
了解详情
2023-08-05
3分钟搞定水泵扬程和进出水的关系
高扬程水泵低负荷运行很多人认为抽水扬程越低,电机负荷越小。在这...
了解详情
2023-08-04
泵最大安装高度如何计算?
离心泵是输水中最常用的泵之一,泵房内的地坪标高取决于水泵的安...
了解详情
...
8
9
10
11
12
...